Your Cart

The Aleph building facade

2025
The Aleph building facade
The Aleph building facade
Giá: 0 đ

Mô Tả

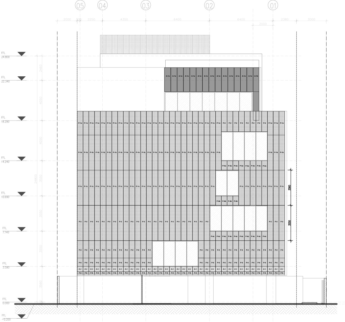
Project: The Aleph building facade

Address: 45 Ngo Thoi Nhiem, Vo Thi Sau ward, HCMC

Owner: AKYN HOSPITALITY GROUP

Year of completion: 2026

 

Facade & Lighting facade design: GA5 Studio

Design team: Thuy Truc, Giang Le, Si Khang, Thanh Truc, Anh Kim

 

Construction: Hunter Douglas VietNam, Searefico, Sen decor

Photo by: GA5 studio